Детальний опис об`єкта №69841:
Продаж 1-кімнатної квартири в новобудові ЖК “Перлина Дніпра” (Митниця).
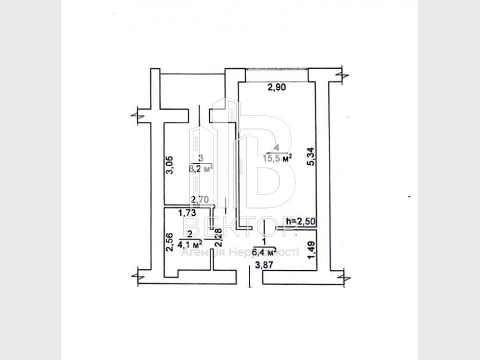
Площа 36 м², кухня 8 м², 2/10 поверх. Вільне планування, клас комфорт. Квартира після будівельників: виконано стяжку, штукатурку, проведено мідну електропроводку, встановлені радіатори. Централізоване опалення.
Будинок обжитий, ОСББ, ремонти у сусідів завершені.
Чудове розташування — поряд зупинка транспорту, супермаркет, ТРЦ, аптека; до Дніпра — кілька хвилин пішки.
Цікавлять деталі?
Введіть Вашe им`я:
:
Введіть Ваш телефон:
:

